Producenci
Wkład kominkowy SAVEN Energy Up 75х50х47R Black (15,1 kW) ECO
Opis
Stalowy wkład kominkowy SAVEN Energy Up 75х50х47R Black (15,1 kW) ECO z gilotyną
NAPISZ LUB ZADZWOŃ! DORADZIMY TECHNICZNIE I NA PEWNO OSIĄGNIEMY KOMPROMIS CENOWY
Stalowe wkłady kominkowe z gilotyną SAVEN są wykonane z certyfikowanych materiałów i z wykorzystaniem unikalnych technologii. Kominek spełnia kryteria Ekoprojektu.
Główne zalety stalowego wkładu kominkowego z podnoszonym mechanizmem SAVEN Energy Up 75х50х47R (15,1 kW) ECO to:
Wygodny i niezawodny mechanizm podnoszenia drzwiczek wkładu kominkowego
W stalowym wkładzie kominkowym SAVEN Energy Up 75х50х47R (15,1 kW) ECO przewidziano otwieranie drzwiczek poprzez podnoszenie w górę, czyli mechanizm gilotyny (do codziennego użytkowania) oraz boczne otwieranie w prawo (do konserwacji). Zalety takiego systemu to:
- solidne uszczelnienie komory spalania
- ciche zamykanie i otwieranie
- ustalanie drzwiczek w dowolnym położeniu
- automatyczny system dociskania drzwiczek dla pewnego uszczelnienia
- możliwość regulacji ciężaru do dodania/odjęcia, aby dostosować zamykanie i otwieranie zgodnie z wygodą użytkownika
- tryb bocznego otwierania drzwiczek do konserwacji
Nowoczesne technologie i efektywność energetyczna
Wkład z gilotyną SAVEN Energy Up 75х50х47R (15,1 kW) ECO szybko się nagrzewa i długo utrzymuje ciepło w pomieszczeniu, co pozwala nie tylko oszczędzać koszty opału, ale także utrzymywać komfortową temperaturę i atmosferę w domu.
- Wysoka sprawność stalowego wkładu kominkowego dzięki zastosowaniu konstrukcji odprowadzania spalin
- Kompatybilność stalowego wkładu kominkowego z systemem rekuperacji
- Dolne i tylne podłączenie powietrza
- Dwustronny deflektor w stalowym wkładzie kominkowym dla zwiększenia efektywności i lepszego przekazywania ciepła
- Stabilna i sztywna konstrukcja, nie ulegająca deformacji i odporna na działanie wysokich temperatur
- Uszczelnienie stalowego wkładu kominkowego sznurami kominkowymi dla dodatkowego uszczelnienia
- Mocny profil drzwiowy stalowego wkładu kominkowego z szybą, odporny na skręcanie i odkształcanie pod wpływem wysokich temperatur
- Unikalna konstrukcja nóżek wkładu kominkowego z prostym szkłem, zapewniająca łatwy i szybki montaż
- Płynna i łatwa regulacja ognia jednym regulator

Jakość certyfikowanych materiałów z UE
Stalowy wkład z gilotyną SAVEN Energy Up 75х50х47R (15,1 kW) ECO wykonany jest wyłącznie ze sprawdzonych i wysokiej jakości materiałów. W produkcji zastosowano:
- Blacha gorąco walcowana niskostopowa stal kotłowa o grubości od 3 do 5 mm
- Obudowa grubymi osłonowymi płytami szamotowymi z autorskim wzornictwem od SAVEN
- Ekologiczna farba, nie wydzielająca dymu podczas rozpalania i odporna na duże wahania temperatur
- Ogniotrwałe szkło niemieckiego producenta Schott Robax (4 mm), wytrzymujące temperaturę do 760°C
Praktyczność i bezpieczeństwo
Stalowy wkład z gilotyną SAVEN Energy Up 75х50х47R (15,1 kW) ECO to uniwersalny wkład kominkowy z podnoszonym mechanizmem, który wpisuje się w każdy styl wnętrza i bezpiecznie służy przez wiele lat.
- Łatwość montażu. Kompaktowe wymiary i masa stalowego wkładu pozwalają na montaż praktycznie w dowolnym miejscu i na każdym etapie remontu.
- Niewielka konserwacja. Drewno we wkładzie efektywnie się spala, dlatego popiół tworzy się rzadko, a jego usuwanie nie jest częste.
- System "czyste szkło", chroniący szkło wkładu przed zaparowaniem i sadzą.
- Uniwersalny design, który można zastosować w różnych stylach pomieszczeń.
- Praktyczność. Można dokupić akcesoria i kratki SAVEN, które wizualnie uzupełnią twój kominek.
- Bezpieczeństwo. Wkład SAVEN dzięki precyzji wykonania jest solidnie uszczelniony i bezpieczny w użytkowaniu.
- Troska o ekologię. Zasada oszczędzania energii pomaga racjonalnie korzystać z zasobów naturalnych i zachować środowisko dla przyszłych pokoleń.
DANE TECHNICZNE:

Pliki do pobrania:
Dane techniczne
| Dolot powietrza | Nie |
| Moc nominalna (kW) | 15,1 |
| Sprawność cieplna (%) | 79,3 |
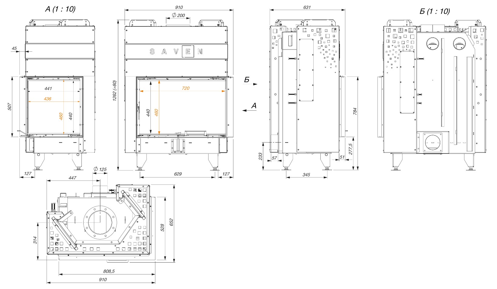
| Wymiary | 910x1262x652 mm |
| Waga (kg) | 261 |
| Max długość polan (mm) | 600 |
| Materiał | Stal |
| Rodzaj paliwa | zalecane sezonowane drewno liściaste o wilgotności ≤20% |
| Średnica wylotu spalin | 200mm |
DARMOWA DOSTAWA
Zrób zakupy za minimum 199zł, a dostawę otrzymasz za darmo!